Developed by Paul Kite Companies
Amarillo, Texas
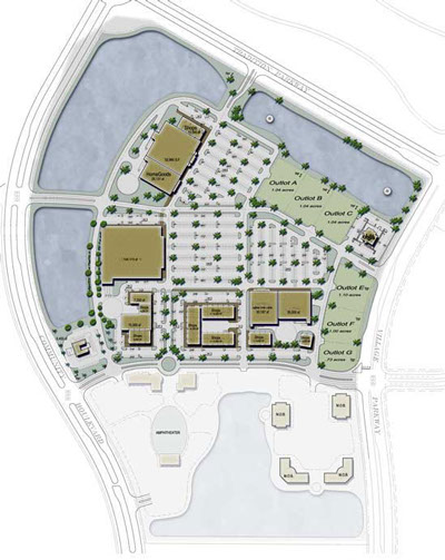
JDD Partners, LLC provided site master planning for this 181+ acre site in Amarillo, TX. The site features nearly 1 million square feet of GLA including the arrangement of a power center, office park, neighborhood retail center and hospitality component.
JDD Partners has completed over 800 acres of additional projects for Paul Kite Companies in cities including:
Naples, Florida
Pompano Beach, Florida
Spring Hill, Florida
Atlanta, Georgia
Naperville, Illinois
Bloomington, Indiana
Evansville, Indiana
Indianapolis, Indiana*
McCordsville, Indiana
Plainfield, Indiana
Boone County, Indiana
Marion, Ohio
Tulsa, Oklahoma
El Paso, Texas
Wolfforth, Texas
Lubbock, Texas
McKinney, Texas
*Denotes multiple projects
Site Plan at Amarillo, TX
Developed by Paul Kite Companies
Tulsa, Oklahoma
JDD Partners, LLC provided site master planning and development phasing for this 160 acre site in Tulsa, OK. The site features nearly 2 million square feet of GLA including the arrangement of a power center, town center, medical office and hospital park, senior living campus, neighborhood retail center and hospitality component.
Site Plan at Tulsa, OK
Developed by Paul Kite Companies
Indianapolis, Indiana
JDD Partners, LLC provided site master planning and partnered with RSP Architects on the architectural identity for this 46+ acre site northeast of downtown Indianapolis, IN. The site features over 270,000 square feet of GLA. Neighborhood impact was a key factor in this project as thoughtful use of landscape features, pedestrian connections and building placement worked together to create an aesthetically pleasing development while still meeting tenant criteria.
Site Plan at McCordsville, IN
Developed by Regency Centers
Nocatee, Florida
JDD Partners, LLC provided site master planning for this 105+ acre site in Nocatee, FL, encompassing over 1 million square feet of retail GLA.
Site Use Diagram at Nocatee Town Center
Site Plan at Nocatee Town Center
JDD Partners has completed over 1200 acres of additional projects for Regency Centers in cities including:
Beacon Lakes, Florida
Bradenton, Florida
Coconut Creek, Florida
Davie, Florida
Ft. Pierce, Florida
Jacksonville, Florida*
Melbourne, Florida
New Smyrna, Florida
Nocatee, Florida Ocala, Florida
Spring Hill, Florida
Port Charolette, Florida
Madison, Mississippi
*Denotes multiple projects
Animation Stills
Developed by Regency Centers
Beacon Lakes, Florida
JDD Partners, LLC provided site master planning, project identity, architectural design direction and animations for this 45+ acre site in Beacon Lakes, FL, implementing over 470,000 square feet of retail GLA.
Site Plan at Beacon Lakes, FL
Site Plan at Beacon Lakes Marketplace
Shop Elevation Design Concept
Developed by Eclipse Realty
Broad Ripple, Indiana
JDD Partners, LLC provided site planning, project identity, and architectural design direction, maximizing land-use for this challeging infill site in suburban Indianapolis, IN.
Site Concept at Broad Ripple, IN
Massing Model View
Developed by Mertz Development Inc. & JDD Partners, LLC
Huntley, Illinois
Partnering with Mertz Development, Inc. to develop this 410+ acre site in Huntley, IL, JDD Partners, LLC provided site master planning for the first phase of development which includes a retail power center, neighborhood shops, assisted living, single and multi-family residential.
Overall Site Plan at Huntley Town Center
(Rendering courtesy of RSP Architects
& Teska Associates Inc.)
Site Plan at Huntley Town Center
Developed by JDD Partners, LLC
Grand Rapids, Michigan
JDD Partners, LLC created retail site masterplan for a 25 acre site in Grand Rapids, MI owned by a neighborhood church. The 218,000 square feet of retail included a retail anchor, retail junior and small shops.
Site Plan at Grand Rapids, MI
Conceptual view of project corner
Developed by Core Commercial Group, LLC
Port St. Lucie, Florida
JDD Partners, LLC collaberated with the Developer and architectural and engineering consultants to complete a preliminary master plan for a 100+ acre mixed-use retail/office site in Port St. Lucie, FL.
Site Plan Concept
Copyright 2012 JDD Partners, LLC